Calgary, CANADA
Shaganappi in Calgary’s Southwest
Brand new inner city living in the heart of Shaganappi. Rare set of rental opportunities in one of the most convenient locations in Calgary.

About the Project
Shaganappi is a picturesque community in Calgary’s southwest, just a few minutes west from downtown.
Whether you are an executive, couple, have a family, or living solo living, 1711 26th is a fantastic opportunity just for you.
This project has a mix of:
3 Bedroom
1 Bedroom
3.5 Bathroom
1 Bathroom
1,700 square feet
600 square feet


Select Your Unit
Be the first to live here! Brand new, modern living in an established neighborhood! On a quiet street with amazing views of downtown - walking distance to the c-train station, this location can't be beat!
Main Floor Suite
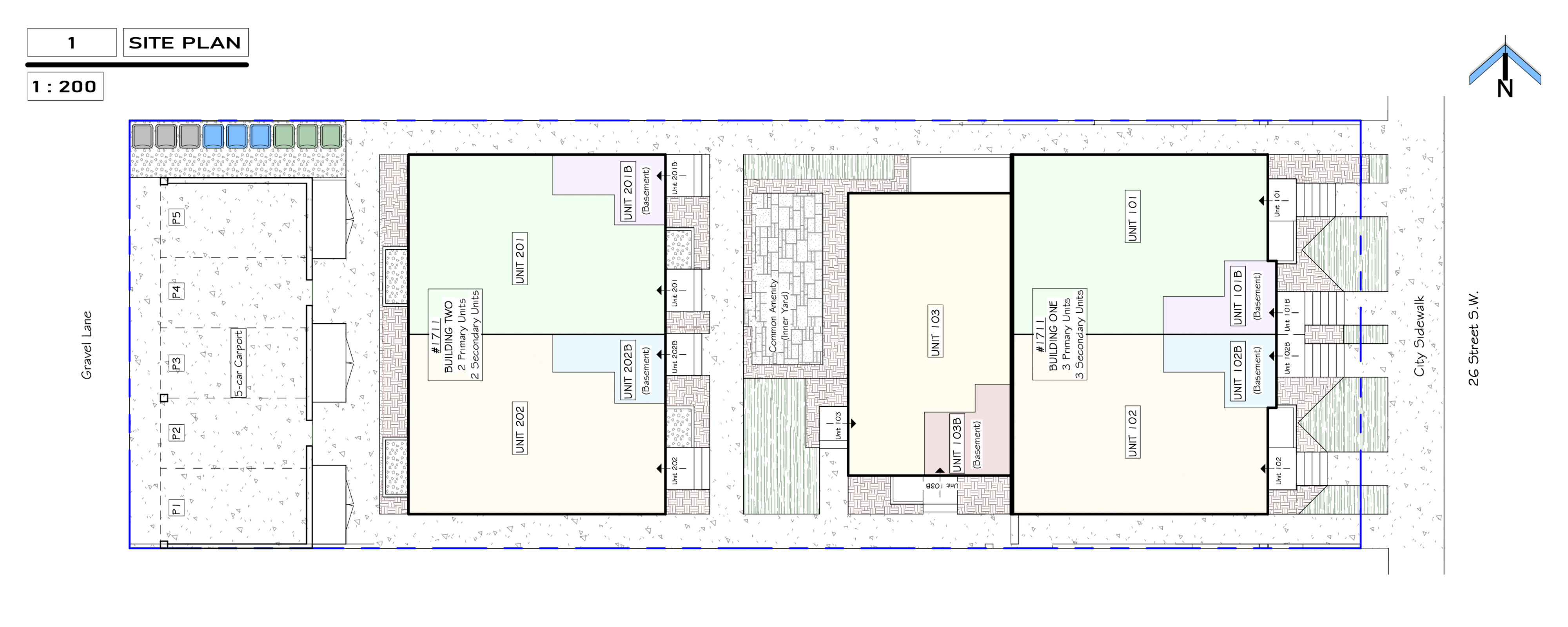
The home features a covered carport that provides convenient and weather-protected parking.
The chef’s kitchen is equipped with stainless steel appliances, including a gas stove ideal for cooking.
With no carpet throughout, the home offers a clean, modern, and low-maintenance living space ideal for rental living.
The top level serves as a private retreat with a family room, an additional bedroom, a full bathroom, and a second balcony.
Upstairs offers laundry, two bedrooms, two bathrooms, and a spacious balcony.
A convenient half bath is located on the main level for guests.
Basement Suite
The property offers substantial sound proofing between upper and lower units, reflecting its superior quality construction.
The modern kitchen is outfitted with stainless steel appliances for a sleek, contemporary look.
With no carpet throughout, the home provides a fresh, clean, and low-maintenance rental space.
Enjoy the convenience of in-suite laundry for everyday living.
Convenient street parking is available for residents and guests.







































